

第1页 / 共8页

第2页 / 共8页
试读已结束,还剩6页,您可下载完整版后进行离线阅读
THE END
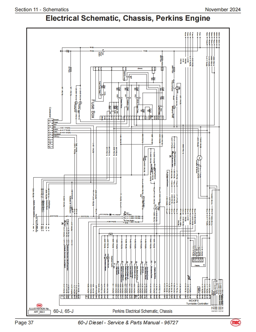
Section 11-SchematicsNovember 2024Electrical Schematic,Lower Controls,Perkins Engine回諺打MC43FS封10AFUS己而业gILLUSTRATION No.ART_632260-J,65-JPerkins Electrical Schematic,Lower Controls其其目Page 3660-J Diesel-Service Parts Manual-96727mec
请登录后查看评论内容