

第1页 / 共2页
试读已结束,还剩1页,您可下载完整版后进行离线阅读
THE END
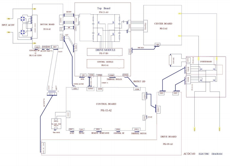
Top BoardPM-21-A0DeUr ACDoVDOTTOM BOARDCENTER BOARD236A0PDA2+24DRIVE MODULEPK-07-BOCONTROL MODLLENERIERBOPDPK03AIa001配E8L第rCHPROTECT LEDCONTROL BOARDPK-32-A2副器N■T元ED正ETAECONTRIOL HEFTHE8LS纵TG国DRIVE BOARDPK-09-A3AC/DC160ELECTRIC DIAORAM
请登录后查看评论内容