

第1页 / 共14页

第2页 / 共14页
试读已结束,还剩12页,您可下载完整版后进行离线阅读
THE END
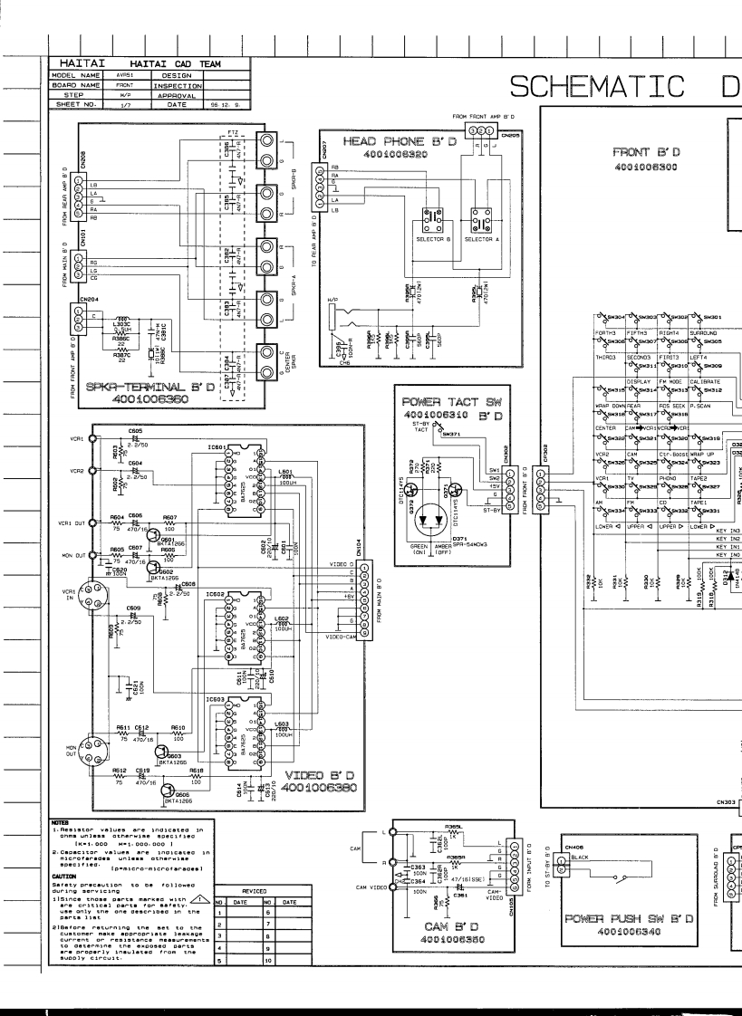
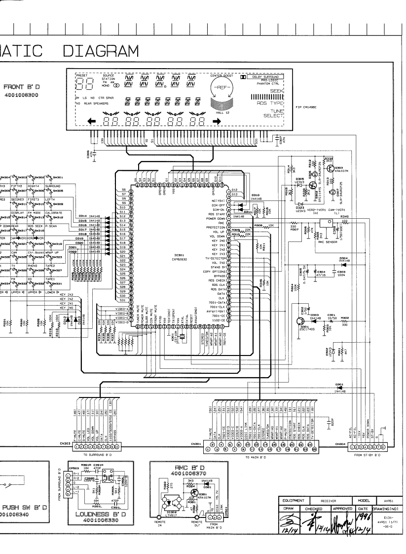
HAITAIHAITAI CAD TEAMHOOEL NAMEDESIGNBOA日D NAMEINSPECTION段置里口w/aSCHEMATICDSHEET NO.1/7DATEHEAD PHONE B'D400400g326FRONT B'D4001008300@00006可oo8础蟹酵群的STEEMINAL D450E54001006380POEH丁ACTS树4001006340日'D幸2349E2器KEY IN2OAKEY INSKEY INO酵1c0024899909醉VIDED-CAM-oV红DE0BD4001006390C3031.1,000u.t。00白.0661静P=作iGr0=有iGr0t泰raa0w1CAUTIONSuring Prereneio to 0e follonee年c364NO DATEuEer29nanoaePOWER PUSH SW BDCAM B'D400400634040000第56010
请登录后查看评论内容