

第1页 / 共6页
试读已结束,还剩5页,您可下载完整版后进行离线阅读
THE END
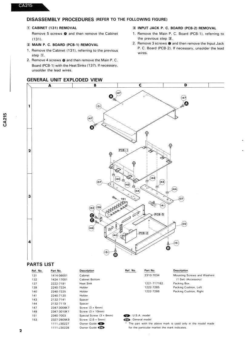
CA215DISASSEMBLY PROCEDURES (REFER TO THE FOLLOWING FIGURE)CABINET (131)REMOVAL3 INPUT JACK P.C.BOARD (PCB-2)REMOVALRemove 5 screws and then remove the Cabinet1.Remove the Main P.C.Board (PCB-1),referring to(131).the previous step☒.2 MAIN P.C.BOARD (PCB-1)REMOVAL2.Remove 3 screws and then remove the Input Jack1.Remove the Cabinet(131),referring to the previousP.C.Board (PCB-2).If necessary,unsolder the leadwiresstep▣.2.Remove 4 screws and then remove the Main P.C.Board(PCB-1)with the Heat Sinks(137).If necessary,unsolder the lead wires.GENERAL UNIT EXPLODED VIEWA06473472PCB-144374344443TEI375339e840PCB-33249PCB-211404⑧®PARTS LISTRef.No.Part No.DescriptionRef.No.Part No.Description1311414-06001Cabinet2310-7034Mounting Screws and Washers1321424.17001Cabinet Bottom(1 Set)(Accessoryl1372222-7191Heat Sink1221-717182Packing Box1392240-7224Holder1222-7285Packing Cushion.Left1402240-7225Holder1222.7286Packing Cushion,Right1412240-7120Holder1432132-7141Spacer1442132-7119Spacer1472347-3006K7Screw(3×6mml1492347.3010K1Screw3¥10mml1512340-7003Special Screw3×8rmmlU.S.A.model1532327-2605K9Screw2.6×5mmlGeneral model1111-J30227Owner GuideThe part with the above mark is used only in the model made1111-J30228Owner Guidefor the particular market the mark indicates.2
请登录后查看评论内容