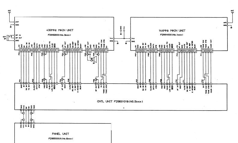
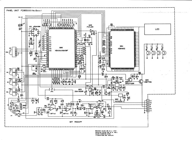
FT-4700RH电器原理图s找手册网34天前发布关注私信0.57MB6页031FT-4700RH电器原理图s此内容为付费资源,请付费后查看¥19¥21黄金会员免费钻石会员免费登录购买付费资源 第1页 / 共6页 第2页 / 共6页 第3页 / 共6页 第4页 / 共6页 第5页 / 共6页 试读已结束,还剩1页,您可下载完整版后进行离线阅读 THE END八重洲 文本预览 T8430MHz MAIN UNIT144位AIN UNITF29920000.3xxx1P2991000o.1x×】5音目层点8x正自第且组85服gB的:】0000@00H@0o0000ooooeo0o-0o080©oooH回o0o0a0@o0 0000000o¥的是CNTL UNIT F2960101B (N0.5xxx8量%8异8PANEL UNITP2955000Ao.6w1 查看更多 收起部分 喜欢就支持一下吧收藏
请登录后查看评论内容