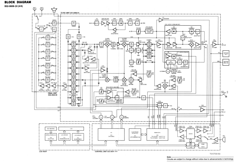
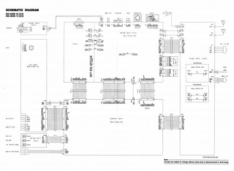
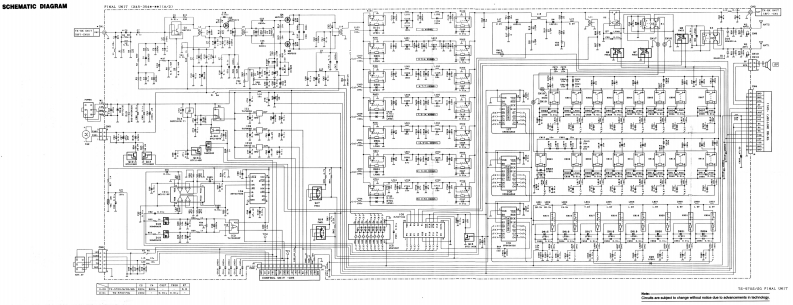
TS-570S_电器原理图找手册网31天前发布关注私信14.26MB7页031TS-570S_电器原理图此内容为付费资源,请付费后查看¥19¥21黄金会员免费钻石会员免费登录购买付费资源 第1页 / 共7页 第2页 / 共7页 第3页 / 共7页 第4页 / 共7页 第5页 / 共7页 第6页 / 共7页 第7页 / 共7页 已完成全部阅读,共7页 THE END建武 文本预览 SCHEMATIC DIAGRAM®52-0608-303/4KB52-06091022CONI6月和面4a2每t5出总金12路5出的线罗“3TX-RXK UIT (A5T500-(PLL1w壶恒修时细腿田细通爆,E"一田FIMAL UNIT LA/R)tasred8645-361”-年*a14©EXT.AT网159530x45-340-00a品强4结CDSP]RIT/XITCONTROL LHITwe/LeTX-AX UNITMAIN ENCOOER-5700v80Gv80 查看更多 收起部分 喜欢就支持一下吧收藏
请登录后查看评论内容