SNORKEL-MHP15-44-Repair-Parts-Manual-July-2006-Mk2操作与维修手册

SNORKEL-MHP15-44-Repair-Parts-Manual-July-2006-Mk2操作与维修手册-找手册网
SNORKEL-MHP15-44-Repair-Parts-Manual-July-2006-Mk2操作与维修手册
此内容为付费资源,请付费后查看
1921
立即购买
您当前未登录!建议登陆后购买,可保存购买订单
付费资源

第1页 / 共120页

第2页 / 共120页

第3页 / 共120页

第4页 / 共120页

第5页 / 共120页

第6页 / 共120页

第7页 / 共120页

第8页 / 共120页

第9页 / 共120页

第10页 / 共120页
试读已结束,还剩110页,您可下载完整版后进行离线阅读
THE END
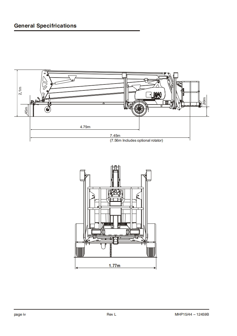
SnorkelMaintenance andRepair PartsManualWHP⑤④4Engine PoweredGasoline/DieselBattery ElectricP/N12459BJuly 2006 Rev L
喜欢就支持一下吧
评论 抢沙发

请登录后发表评论

    请登录后查看评论内容