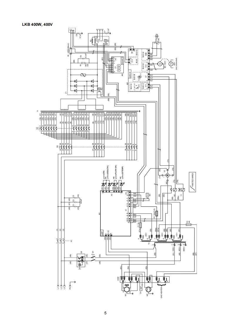
ESAB-LKB400W维修手册找手册网9小时前发布关注私信1.09MB26页038ESAB-LKB400W维修手册此内容为付费资源,请付费后查看¥29¥31黄金会员免费钻石会员免费立即购买您当前未登录!建议登陆后购买,可保存购买订单付费资源 第1页 / 共26页 第2页 / 共26页 第3页 / 共26页 第4页 / 共26页 第5页 / 共26页 第6页 / 共26页 第7页 / 共26页 第8页 / 共26页 第9页 / 共26页 第10页 / 共26页 试读已结束,还剩16页,您可下载完整版后进行离线阅读 THE ENDESAB 文本预览 LKB 400WESABWELDING RECTIFIERLKB 400w8@Service manual034930002001-01-24 查看更多 收起部分 喜欢就支持一下吧收藏
请登录后查看评论内容