

第1页 / 共13页

第2页 / 共13页

第3页 / 共13页

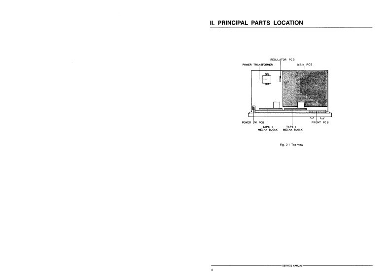
第4页 / 共13页

第5页 / 共13页

第6页 / 共13页

第7页 / 共13页

第8页 / 共13页

第9页 / 共13页

第10页 / 共13页
试读已结束,还剩3页,您可下载完整版后进行离线阅读
THE END
HX-27WAKAI SERVICE MANUALAKAI@门回06STEREO DOUBLE CASSETTE DECKMODELHX-27WSPECIFICATIONSHeadsTape I deck.......Hard permalloy head for playback x 1Tape ll deckHard permalloy head for recording playback x 1Erase head x 1M0tors…DC motor x 2Wow futter..................0.2%(D1N)Frequency responseNORMAL40Hzto12,500Hz±3dBCro2...40Hzto13.000Hz±3dBMetal........40Hzto14,000Hz±3dBS/N ratio53 dB(Metal tape)T.H.D.1.5%(Normal tape)Input sensitivity impedance......80 mV/47 kohmsOutput Level…500mVPower requirements...................AC220 to 230 V,50 Hz for Europe except UKAC240 V,50 Hz for UK and AustraliaDimensions..............425(WX135(HX275(D)mmWeight ......3.5kgStandard accessoriesConnection cord......RCA pin cord x 2Operator's manual.…x 1For improvement purposes,specifications and design are subject to change without notice.Noise reduction manufactured under license from dolby laboratories licensing corporation"DOLBY"and O symbol are trade marks of dolby licensing corporation.
请登录后查看评论内容