西门子QBM66压差传感器

西门子QBM66压差传感器-找手册网
西门子QBM66压差传感器
此内容为付费资源,请付费后查看
1921
付费资源

第1页 / 共6页

第2页 / 共6页

第3页 / 共6页

第4页 / 共6页

第5页 / 共6页

第6页 / 共6页
已完成全部阅读,共6
THE END
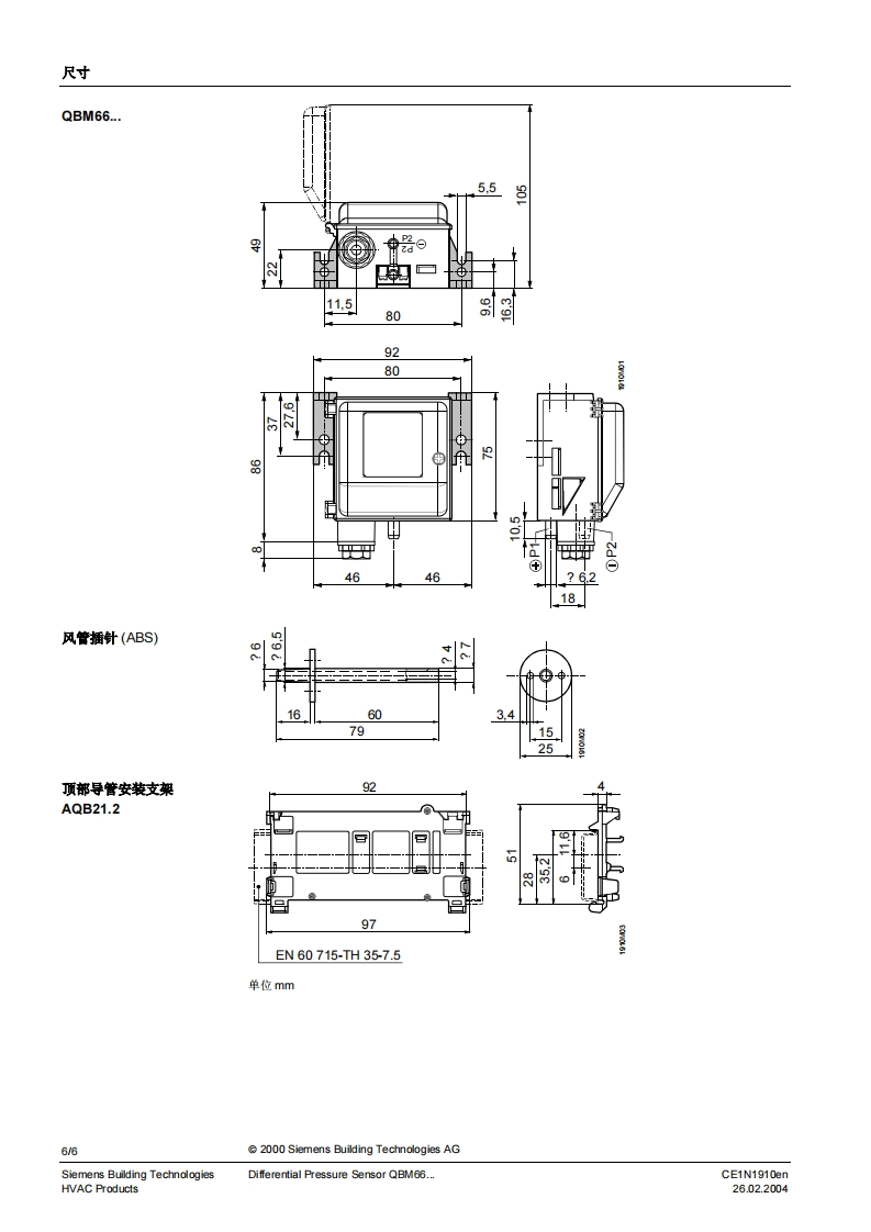
SIEMENS1910压差传感器QBM66...用于空气和无腐蚀性气体·压力线性特性,测量范围可调·工作电压AC24V或者DC13.5..33V·输出信号DC0.10V·供货时带管子连接设各用途用于获取暖通空调中空气和非腐蚀性气体的压差值。压若传感器用于·获取和周围环境压力之间的正压或者负压值大小·监测过滤器并控制风机·测量不同房间的压差型号一览型号测量范围过压范围输出信号范围1范围2PmaxQBM66.2010.100Pa0.200Pa±5.000PaDC0...10VQBM66.2020..250Pa0.500Pa±10.000PaDC0..10VQBM66.2030..1.500Pa0.3.000Pa±20.000PaDC 0...10VCE1N1910enSiemens Building Technologies26.02.2004HVAC Products
喜欢就支持一下吧
评论 抢沙发

请登录后发表评论

    请登录后查看评论内容