

第1页 / 共25页

第2页 / 共25页

第3页 / 共25页

第4页 / 共25页

第5页 / 共25页

第6页 / 共25页

第7页 / 共25页

第8页 / 共25页

第9页 / 共25页

第10页 / 共25页
试读已结束,还剩15页,您可下载完整版后进行离线阅读
THE END
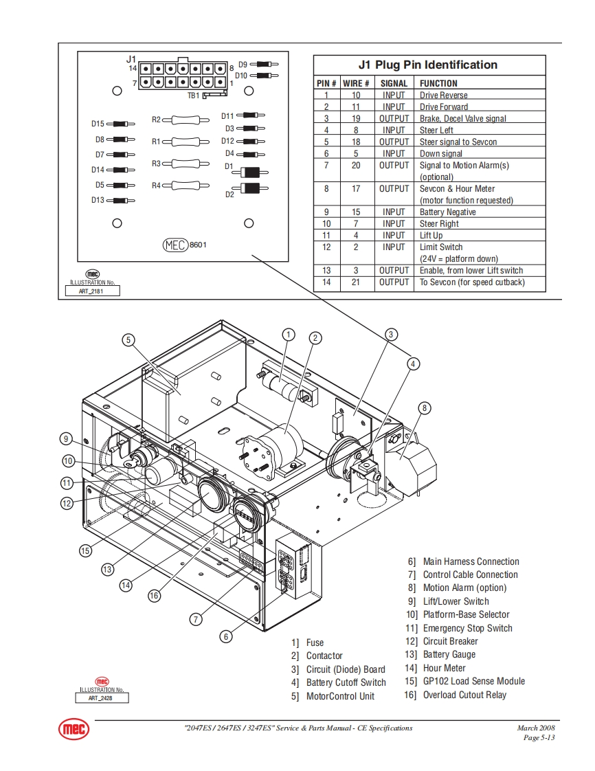
126293⑤8⑩151]Lift/Drive Selector Switch2]Emergency Stop Switch3]Torque Switch4]Overload Warning Light(Red)》5]Horn Button (option)6]Steering Micro-Switches7]Drive Enable Switch8]Reverse/Down Rocker Switch9]Forward/Up Rocker Switch10]PotentiometereILLUSTRATION NO11】Terminal Strip奶T242912]Control Box AlarmMarch 2008"2047ES /2647ES/3247ES"Service Parts Manual-CE Specificationsmec)Page 5-12
请登录后查看评论内容