MEC升降车平台93080-SCH-A92.6维修电气原理图手册

MEC升降车平台93080-SCH-A92.6维修电气原理图手册-找手册网
MEC升降车平台93080-SCH-A92.6维修电气原理图手册
此内容为付费资源,请付费后查看
1921
立即购买
您当前未登录!建议登陆后购买,可保存购买订单
付费资源

第1页 / 共10页

第2页 / 共10页

第3页 / 共10页

第4页 / 共10页

第5页 / 共10页

第6页 / 共10页

第7页 / 共10页

第8页 / 共10页

第9页 / 共10页

第10页 / 共10页
已完成全部阅读,共10
THE END
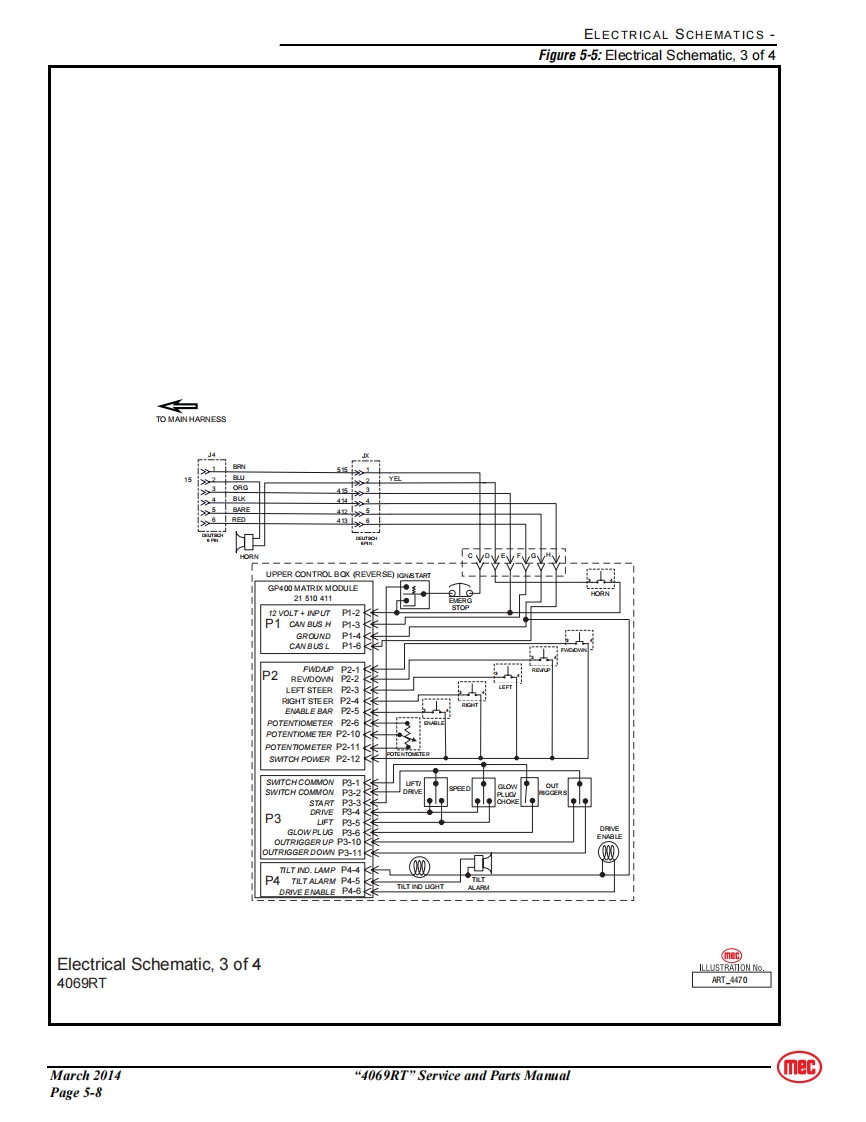
SERVICEmecSection 5SCHEMATICSCONTENTSPAGEHydraulic Schematics Table..............5-2Hydraulic Schematic5-3Electrical Schematics...............5-5FIGURESPAGEHydraulic Schematic5-3Functions Manifold.........................5-4Electrical Schematic,1of3............................··5-5Electrical Schematic,.2of3.................................5-6Electrical Schematic,3 of 35-7mec"4069RT"Service and Parts ManualMarch 2014Page 5-1
喜欢就支持一下吧
评论 抢沙发

请登录后发表评论

    请登录后查看评论内容