MEC升降车平台96909-SCH维修电气原理图手册

MEC升降车平台96909-SCH维修电气原理图手册-找手册网
MEC升降车平台96909-SCH维修电气原理图手册
此内容为付费资源,请付费后查看
1921
立即购买
您当前未登录!建议登陆后购买,可保存购买订单
付费资源

第1页 / 共7页

第2页 / 共7页

第3页 / 共7页

第4页 / 共7页

第5页 / 共7页

第6页 / 共7页

第7页 / 共7页
已完成全部阅读,共7
THE END
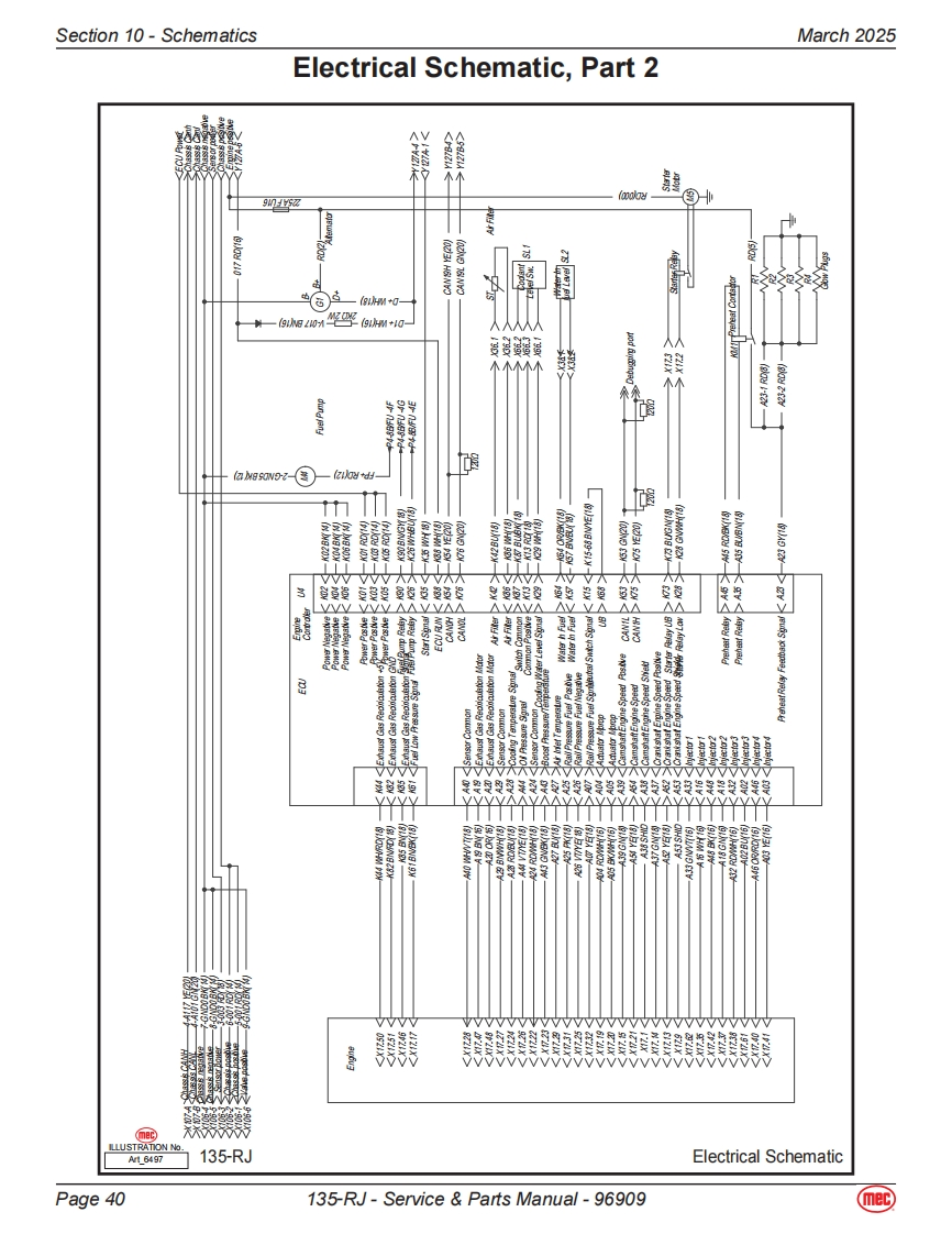
Section 9-MaintenanceMarch 2025Seven Year MaintenanceThe following maintenance should be done every 7 years.1)Replace the Wire RopeMandatory wire ropes and sheaves replacement intervals are 7 years.Sheaves and wire rope must be replaced as sets.Mandatory wire rope and sheaves replacement must be carried out if anyone of the followedconditions exists,even if the interval between the replacements does not exceeds 7 years.Rusted or corroded wire ropes.·Kinked,“bird caged",or crushed ropes.Ropes at end of adjustment range.Sheaves failing wear out gage inspection.。Ropes with 6 total broken wires in one rope lay,3 in one strand in one rope lay,1 valleybreak,or 1 break at any end termination.Page 37135-RJ-Service Parts Manual-96909mec
喜欢就支持一下吧
评论 抢沙发

请登录后发表评论

    请登录后查看评论内容