

第1页 / 共85页

第2页 / 共85页

第3页 / 共85页

第4页 / 共85页

第5页 / 共85页

第6页 / 共85页

第7页 / 共85页

第8页 / 共85页

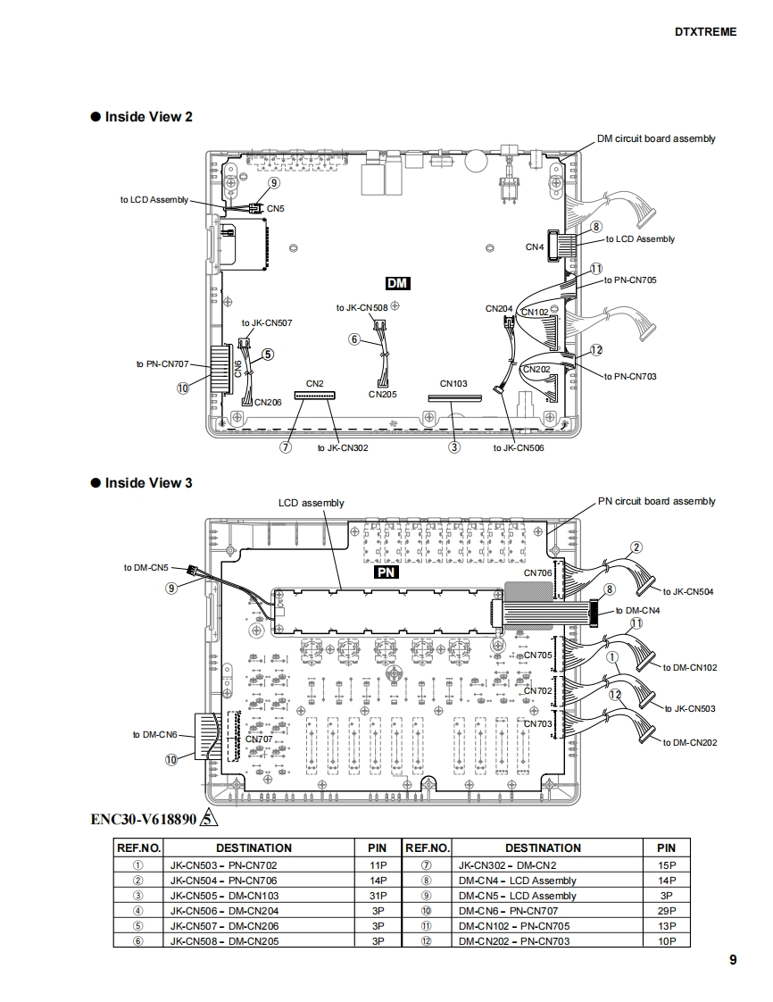
第9页 / 共85页

第10页 / 共85页
试读已结束,还剩75页,您可下载完整版后进行离线阅读
THE END
DEXTREMEDRUM,TRIGGER MODULESERVICE MANUAL◆YAMAHADEXTREME#中管1e回■CONTENTSSPECIFICATIONS.3/4BLOCK DIAGRAM5PANEL LAYOUT..UNIT LAYOUT and WIRING⊙DISASSEMBLY PROCEDURE.10LSI PIN DESCRIPTION13IC BLOCK DIAGRAM…]15CIRCUIT BOARDS18TEST PROGRAM…28/44ERROR MESSAGES60/62TROUBLESHOOTING64/67MIDI IMPLEMENTATION CHART.70PARTS LISTThis document is printed on chorine tree (ECF)paper with soy ink.OVERALL CIRCUIT DIAGRAMYAMAHAED011545HAMAMATSU.JAPAN1.932K-59 KPrinted in Japan'01.01
请登录后查看评论内容