

第1页 / 共44页

第2页 / 共44页

第3页 / 共44页

第4页 / 共44页

第5页 / 共44页

第6页 / 共44页

第7页 / 共44页

第8页 / 共44页

第9页 / 共44页

第10页 / 共44页
试读已结束,还剩34页,您可下载完整版后进行离线阅读
THE END
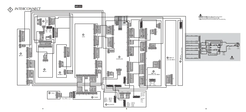
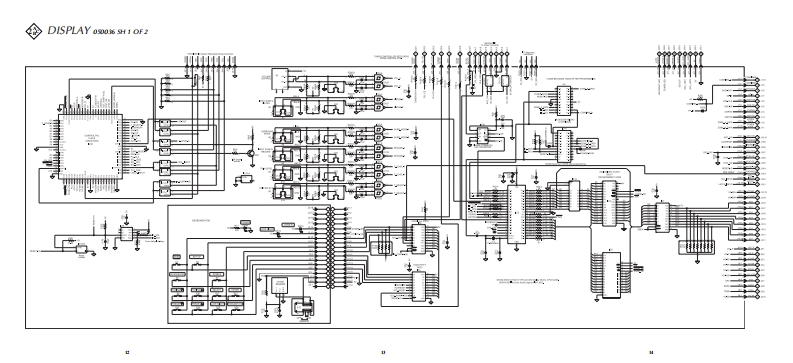
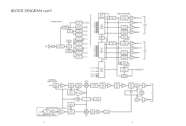
MX135A/V CONTROL CENTERMclntoshTHIN LEVELINPUT SMX135 A/V CONTROL CENTERNPUT AT'D128SAT2TRIM 8ELECTSURROUND MOOEmm画7m四Dm四CENTER SPAR08A55四四回四0☒04☑0▣思器ds图5Y0LTE NI3HT STAN号YIGCONTENTSPerformance Specifications........2-3Video Schematic and PCB.............48-50Notes......3Input Lamp Schematic and PCB.51.56Rear PanelComponent Video Schematic and PCB ...........57-60Section Location4Tuner AM/FM Alignment Procedure................61-62Block Diagram...5-8Tuner/RAA1 Schematic and PCB.................63-66Interconnection Diagram....9-11Balanced Schematic and PCB67-70Display Schematic and PCB....…121g71-90Surround Schematic and PCB...19-34Exploded Views and Parts Lists91.94Data Schematic and PCB.....37-41Repacking Instruction.....95S-Video Schematic and PCB..42-47SERVICE MANUAL
请登录后查看评论内容