siemens西门子SQN9.基础文件-中文安装操作说明书手册

siemens西门子SQN9.基础文件-中文安装操作说明书手册-找手册网
siemens西门子SQN9.基础文件-中文安装操作说明书手册
此内容为付费资源,请付费后查看
1921
付费资源

第1页 / 共9页

第2页 / 共9页

第3页 / 共9页

第4页 / 共9页

第5页 / 共9页

第6页 / 共9页

第7页 / 共9页

第8页 / 共9页

第9页 / 共9页
已完成全部阅读,共9
THE END
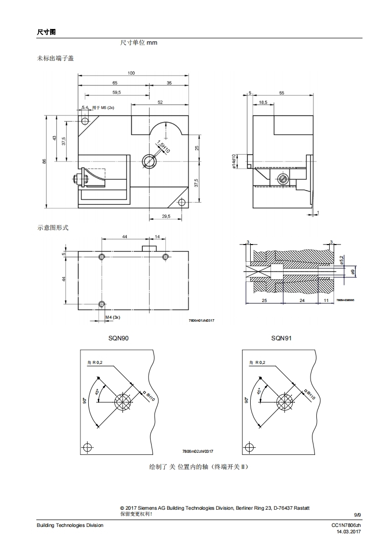
SIEMENS7806SQN9-正面SQN9-背面(无护板)(带护板)执行器SQN9...用于中小型功率燃油或燃气燃烧器上风门挡板和燃料调节阀的电动执行器。SQN9以及本资料专供在其设备中集成使用SQN9的原始设备制造商(OEM使用I应用特征执行器SQN9设计用于中小型功率燃油或燃气燃烧器上气门和风门挡板的驱动装置,以根据负荷控制燃料及燃烧空气量:与P-PI或PD调节器组合使用,例如RWF5x直接通过不同的燃烧器控制器,比如LOA,LMO,LMG,LFL●与单线控制器、双线控制器或三点调节器连接。均配有…抗冲击、耐热的塑料外罩·用于电气连接的螺纹连接可脱离、无需维护的传动机构内部位置指示用于动作点调节,可轻松调节的限位和辅助开关内部电子电路·保持力矩:0.8…2.4Nm运行时间:4.24秒旋转方向:SQN90向左旋转SON91向右旋转·SQN9装配孔与电缆入口与Conectron和Berger公司同等级的执行器适配CC1N7806zhBuilding Technologies Division14.032017
喜欢就支持一下吧
评论 抢沙发

请登录后发表评论

    请登录后查看评论内容