西门子QAE2121-010传感器

西门子QAE2121-010传感器-找手册网
西门子QAE2121-010传感器
此内容为付费资源,请付费后查看
1921
付费资源

第1页 / 共6页

第2页 / 共6页

第3页 / 共6页

第4页 / 共6页

第5页 / 共6页

第6页 / 共6页
已完成全部阅读,共6
THE END
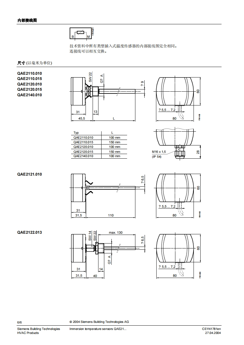
SIEMENS1781SIEMENS02120010Symaro TM插入式温度传感器QAE21...无源插入式温度传心器用于采集水管与水箱中的温度。用逢QAE21..插入式温度传感器用于:·控制或限定水流温度·限定回水温度·控制生活用水温度型号一览型号外部构件浸入长度额定压力传感元件防护等级QAE2110.010配有保护套和螺纹套管GhA100mmPN10Pt100IP 54QAE2110.015配有保护套和螺纹套管GhA150mmPN 10Pt100IP 54QAE2120.010配有保护套和螺纹套管GhA100mmPN 10LG-Ni1000IP42(0P54)可QAE2120.015配有保护套和螺纹套管G?A150mmPN 10LG-Ni1000IP420P54))QAE2121.010配有用于保护套的夹子可100mmPNLG-Ni 1000 IP 42 (IP 54)3QAE2122.013配有压力装置和螺纹保护套GAmax.130 mm 2PN 16LG-Ni1000IP42(P54)可QAE2140.010配有保护套和螺纹套管GA100mmPN 10T1IP42(P54)可1)需要保护套2)可调节浸入长度3)P54带电线接入密封管M16(标准中不包括)4)根据所使用保护套的型号订货订购时,请给出名称和型号类型或订货号码。例如:插入式温度传感器QAE2120.010或保护套ALT-SS100CE1N1781enSiemens Building Technologies27.04.2004HVAC Products
喜欢就支持一下吧
评论 抢沙发

请登录后发表评论

    请登录后查看评论内容