西门子压差传感器QBE63-DP02

西门子压差传感器QBE63-DP02-找手册网
西门子压差传感器QBE63-DP02
此内容为付费资源,请付费后查看
1921
付费资源

第1页 / 共6页

第2页 / 共6页

第3页 / 共6页

第4页 / 共6页

第5页 / 共6页

第6页 / 共6页
已完成全部阅读,共6
THE END
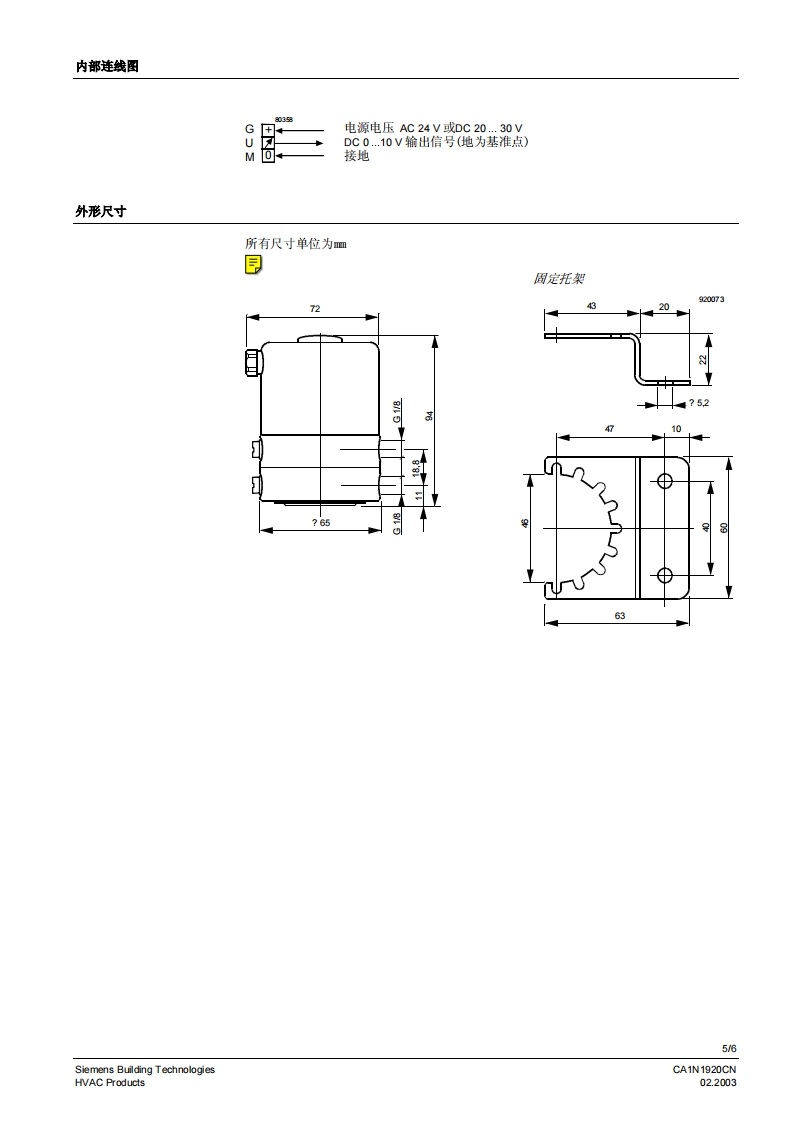
SIEMENS济南工达孔功24小时为您服务!www.cngdkj.com电话:18653198028QQ:1319331276西门子全国最大合作伙伴!压差传感器QBE63-DP...用于中性和轻度腐蚀性的液体与气体气体和液体差压传感器适用于VAC系统中的正负压力和压差测量。·置尔效应转换器技术·高度抗正压能力·高可靠性运行的简易加强结构·适用于中性和轻度腐蚀液体和气体·电源电压AC24V或DC2030V·DC010V输出信号内爆纹G"连接用途QBE63-DP...压差传感器特别适于WC系统中对中性和轻度腐蚀性气体或液体液面和流速的连续监测被监测的压力作用在由膜片、永久磁铁和霍尔效应转换器组成的测量系统上,检测到的压力信号被转换成直流线性DC0..10V输出信号。CA1N1920CNSiemens Building Technologies02.2003HVAC Products
喜欢就支持一下吧
评论 抢沙发

请登录后发表评论

    请登录后查看评论内容