西门子室外温度传感器QAC3161-QAC3171

西门子室外温度传感器QAC3161-QAC3171-找手册网
西门子室外温度传感器QAC3161-QAC3171
此内容为付费资源,请付费后查看
1921
付费资源

第1页 / 共6页

第2页 / 共6页

第3页 / 共6页

第4页 / 共6页

第5页 / 共6页

第6页 / 共6页
已完成全部阅读,共6
THE END
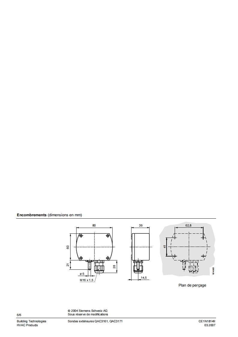
SIEMENS济南工达孔功24小时为您服务!www.cngdkj.com电话:18653198028QQ:1319331276西门子全国最大合作伙伴!SymaroTMQAC3161Sondes exterieuresQAC3171Sondes actives pour la mesure de la temperature exterieure.Alimentation 24V~ou 13.5...35 V-Signal de sortie 0...10 V-ou 4...20 mA (technologie 2 fils)Domaines d'applicationCes sondes sont utilisees dans des installations de chauffage,ventilation et climatisa-tion commeSondes de compensation pour la regulation en fonction de la temperature exterieureSondes de mesure,par ex.pour l'optimisation ou pour l'affichage de la mesure ou laconnexion a un systeme de gestion technique de batimentSondes pour la mesure de la temperature ambiante dans les locaux humidesReferences et designationsReferencePlage de mesureAlmentationSignal de sortieQAC3161-50.+50℃24V±20%/13,5.35V-0.10V-QAC3171-50..+50℃13.5.35V-4...20 mA (2 fils)Commande et livraisonA la commande.preciser la designation et la referenceExemple Sonde exterieure QAC3161.Un presse-etoupe M16 est fourni avec l'appareilCE1N1814f斤Building Technologies03.2007HVAC Products
喜欢就支持一下吧
评论 抢沙发

请登录后发表评论

    请登录后查看评论内容