MEC升降车平台95090-SCH-A92.20维修电气原理图手册

MEC升降车平台95090-SCH-A92.20维修电气原理图手册-找手册网
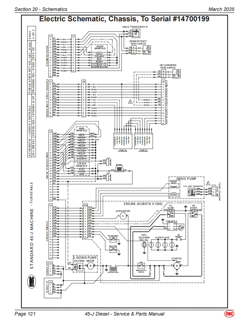
MEC升降车平台95090-SCH-A92.20维修电气原理图手册
此内容为付费资源,请付费后查看
1921
立即购买
您当前未登录!建议登陆后购买,可保存购买订单
付费资源

第1页 / 共8页

第2页 / 共8页

第3页 / 共8页

第4页 / 共8页

第5页 / 共8页

第6页 / 共8页

第7页 / 共8页

第8页 / 共8页
已完成全部阅读,共8
THE END
Section 20-SchematicsMarch 2025Hydraulic Schematics程695MAN MANF CLD图Page 11845-J Diesel-Service Parts Manualmec
喜欢就支持一下吧
评论 抢沙发

请登录后发表评论

    请登录后查看评论内容