

第1页 / 共138页

第2页 / 共138页

第3页 / 共138页

第4页 / 共138页

第5页 / 共138页

第6页 / 共138页

第7页 / 共138页

第8页 / 共138页

第9页 / 共138页

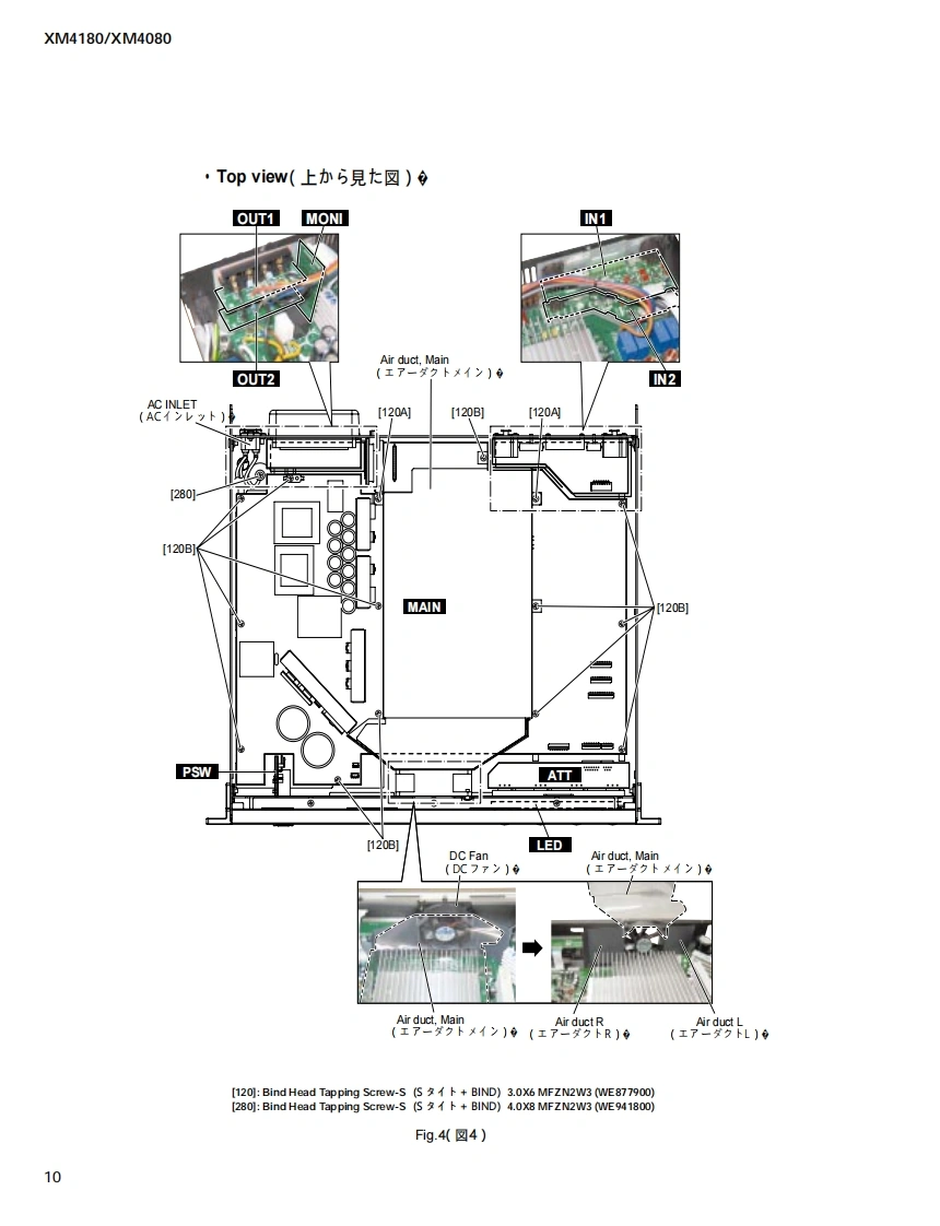
第10页 / 共138页
试读已结束,还剩128页,您可下载完整版后进行离线阅读
THE END
POWER AMPLIFIERXM4180/XM4080SERVICE MANUALXM4180XM4080■CONTENTS(目次)SPECIFICATIONS(然合仕樣CIRCUIT BOARD LAYOUT(1二y卜y了7卜).....4VIRING(結線☒)…5DIMENSIONS(寸法☒)..…6PANEL LAYOUT(パ礻儿了7卜)..7DISASSEMBLY PROCEDURE(分解手順)....8IC BLOCK DIAGRAM(ICブ口y夕☒..…5CIRCUIT BOARDS(之一卜基板☒)...16INSPECTIONS(梭查)...33/40TROUBLESHO0TING(卜ブ儿>1-テ1y分)...4774PARTS LISTBLOCK DIAGRAM(ブ口ッ夕ダ亻了ヴラㄙ)CIRCUIT DIAGRAM(回路☒)PA011805YAMAHAXM4180:200511-207900HAMAMATSU,JAPANXM4080:200511.144900Copyright(c)Yamaha Corporation.All rights reserved.PDF'05.11
请登录后查看评论内容